Dążeniem wielkich wytwórców energii elektrycznej i cieplnej, jakimi są elektrownie i elektrociepłownie, jest wypełnienie zobowiązań zrealizowania limitów określających udział wyprodukowanej energii ze źródeł odnawialnych w stosunku do całkowitej ilości wyprodukowanej energii. Rygory te limitują ilość spalanej biomasy. O ile w przypadku małych jednostek energetycznych warunek ten można wypełnić w sposób nienaruszający zbytnio podstawowego parametru eksploatacyjnego kotła, jakim jest sprawność (η), to w przypadku dużych jednostek energetycznych parametr ten może być w bardzo istotny sposób obniżony. Znacznemu pogorszeniu mogą ulec również inne parametry eksploatacyjne, jakimi są niezawodność i pewność eksploatacyjna oraz bezpieczeństwo instalacji [1-3].
Dotychczas stosowane w Polsce metody spalania biomasy ograniczają się głównie do współspalania mieszanek biomasy leśnej z węglem w kotłach rusztowych i w kotłach fluidalnych oraz współspalania mieszanek pyłowych w kotłach pyłowych. W każdym z wyżej wymienionych przypadków współspalanie drewna z węglem powoduje jednak obniżenie sprawności termicznej urządzenia kotłowego lub obniża jego niezawodność eksploatacyjną, zwiększa koszty eksploatacyjne i obniża bezpieczeństwo pracy. Dzieje sie tak, ponieważ charakterystyki kinetyczne drewna są zupełnie inne niż węgla [3].
Obniżenie sprawności termicznej kotłów powstaje w wyniku zanieczyszczania powierzchni ogrzewalnych lotnym popiołem, zaszlakowania ścian komory płynnym żużlem i w konsekwencji wzrostem temperatury wylotowej spalin. Wzrost zanieczyszczenia powierzchni ogrzewalnych kotła, wynika w dużej mierze ze struktury fizycznej popiołu pochodzącego z biomasy. Popiół pochodzący z substancji mineralnej biomasy posiada zupełnie inną strukturę i własności fizyczne niż popiół pochodzący z węgla. Popiół pochodzący z biomasy ma znacznie mniejszą gęstość pozorną i bardziej rozwiniętą powierzchnię zewnętrzną. Posiada strukturę kłaczkowatych płaskich płytek. Intensywne zanieczyszczenia powierzchni ogrzewalnych kotłów rusztowych i fluidalnych są charakterystyczną cechą kotłów opalanych biomasą pochodząca z drewna.
Następną bardzo istotną stratą, która pojawia się w wyniku spalania biomasy jest strata niecałkowitego spalania w lotnym koksiku. Strata ta powstaje w wyniku wynoszenia przez strumień gazów spalinowych cząstek lotnego koksiku z komory kotła. Strata ta niekiedy przekracza dopuszczalny 5% próg zawartości karbonizatu. Strata niecałkowitego spalania w lotnym koksiku wynika przede wszystkim z faktu bardzo niskiej gęstości pozornej karbonizatu powstałego w wyniku szybkiej pirolizy biomasy. Ponieważ siła wyporu ziaren karbonizatu jest znacznie większa od siły ciężkości, ziarna lotnego koksiku swobodnie unoszą sie w strumieniu spalin. W przypadku współspalania biomasy pochodzącej z drewna z pyłem węglowym występują trudności wynikające z braku zdolności przemiałowych drewna. W czasie pobytu drewna w młynie węglowym jego substancja nie ulega przemiałowi, lecz jest zgniatana i miażdżona przez elementy mielące młyna. Ponieważ rozdział i separacja ziaren w młynie odbywa się na zasadzie różnic w ciężarze cząstek, nawet duże źdźbła pochodzące z drewna nie są oddzielone jako „nadziarno”, lecz podawane są ze strumieniem pyłu do komory kotła jako tzw. „podziarno”. Zjawisko to wynika z faktu, że w stanie suchym, gęstość pozorna drewna może być nawet 2÷3 razy mniejsza niż gęstość węgla
Zakres analizy spalania biomasy w kotłach pyłowych
Analizę procesu spalania biomasy przeprowadzono dla typowych kotłów pyłowych pracujących w polskiej energetyce zawodowej, głównie dla kotłów opalanych pyłem węgla kamiennego. W przypadku kotłów opalanych pyłem węgla brunatnego, próby współspalania biomasy pochodzącej z drewna są sporadyczne i jak dotychczas nie mają charakteru trwałego. W dużej mierze wynika to z podobnej struktury fizykochemicznej węgla brunatnego, który w swej masie, sięgającej nawet do 30%, wykazuje dobrze zachowaną strukturę drewna w postaci odmiany petrograficznej zwanej ksylitem. W związku ze swą strukturą fizyczną, ksylit nie posiada zdolności przemiałowych i w trakcie mielenia węgla brunatnego, nie ulega rozdrobnieniu ziarnowemu, lecz jest miażdżony i w postaci włókien i „źdźbeł” o dość dużych rozmiarach wynoszony jest z młyna. Wprowadzone do komory kotła elementy ksylitu ze względu na swoje gabaryty nie nadążają się spalać i w postaci karbonizatu separowane są z płomienia pyłowego, głównie do leja żużlowego, stanowiąc niedopał w żużlu. Dodatek biomasy do węgla brunatnego, pogarsza dodatkowo charakterystyki przemiałowe młyna i powoduje wzrost straty niedopału w żużlu. W związku z powyższym, próby współspalania biomasy z węglem brunatnym są w polskiej energetyce w dużej mierze zaniechane i poza sporadycznymi przypadkami dotychczas nie są stosowane. Przeprowadzona analiza wskaźników eksploatacyjnych kotłów energetycznych opalanych mieszaniną biomasy i węgla kamiennego dotyczy głównie zawartości części palnych w żużlu i lotnym popiele.

Rys. 1. Zawartość karbonizatu (bkż) w żużlu w zależności od udziału masowego spalanej biomasy (bb) i rodzaju kotła
Analizę przeprowadzono w oparciu o zebrane informacje dotyczące straty niecałkowitego spalania w żużlu i lotnym popiele typowych kotłów opalanych węglem kamiennym. Analiza przeprowadzona dla kotłów OP-150; OP-210; OP-230; OP-380÷OP-430; OP-650 z normalną komorą spalania i OP-650 z powiększona komorą spalania oraz szybowego kotła BP-1150. Uzyskane wyniki analiz odnoszą się do maksymalnego obciążenia cieplnego kotła i maksymalnej ilości pracujących młynów, określonej jako optymalna ilość dla danego typu kotła. Niedopał w żużlu i lotnym popiele oznaczono dla pracy kotła zasilanego wyłącznie pyłem węgla kamiennego przyjętego jako standardowe paliwo oraz dla mieszanki węgla i biomasy o różnych udziałach masowych.

Rys. 2. Zawartość lotnego koksiku (bkp) w lotnym popiele w zależności od udziału masowego spalanej biomasy (bb) i rodzaju kotła
Wyniki oznaczeń zawartości karbonizatu w żużlu i lotnym popiele
Wyniki oznaczeń zawartości koksiku w żużlu w zależności od udziału masowego biomasy w pyle węglowym przy nominalnym obciążeniu cieplnym kotła w zależności od typu kotła przedstawione są na rys. 1, a zawartość koksiku w lotnym popiele na rys. 2. Z przedstawionych na rys. 1 wyników, widać, że zawartość niedopału w żużlu w znacznej mierze zależy od typu kotła oraz od udziału biomasy w podawanym do komory spalania paliwie. Im kocioł posiada mniejszą komorę spalania, tym wielkość niedopału w żużlu jest większa.
Z przedstawionych na rys. 1 zależności wynika, że w przypadku kotłów OP-210; OP-230 dopuszczalny udział biomasy w węglu z uwagi na nieprzekraczanie dopuszczalnej zawartości koksiku w żużlu, powinien być mniejszy od 6% w przypadku kotłów OP-380 i OP-430, udział biomasy powinien być mniejszy od 8%, dla kotłów OP-650 powinien być mniejszy od 9%, a w przypadku kotłów OP-650 z powiększoną komorą spalania nie powinien przekraczać 10%. W przypadku kotłów szybowych BP-1150, udział masowy współspalanej biomasy powinien być mniejszy od 11%.
W odniesieniu do obecnie stosowanych technik przemiału i przygotowania pyłu węglowo-biomasowego, współspalnie biomasy przy wykorzystaniu obecnie stosowanych układów palnik-komora spalania, jest nieekonomiczne i nieekologiczne. Powstały w procesie spalania żużel staje się odpadem zawierającym znaczne ilości niespalonego karbonizatu i powinien być przeznaczonym do dalszej utylizacji. Zawartość koksiku w lotnym popiele przedstawia rys. 2. Strata niedopału w lotnym popiele w zależności od rodzaju kotła oraz ilości współspalanej biomasy podobnie kształtuje się jak w przypadku zawartości karbonizatu w żużlu. Dopuszczalna zawartość koksiku w lotnym popiele przekraczana jest jednak przy znacznie większych udziałach biomasy w spalonym węglu. Przykładowo przekroczenie dopuszczalnej zawartości koksiku w lotnym popiele kotła OP210, następuje dopiero przy współspalaniu biomasy powyżej 9% udziału masowego, a więc więcej o 3% niż w przypadku żużla. Wpływ udziału masowego biomasy na zawartość koksiku w lotnym popiele jest zauważalny dopiero przy znacznym udziale biomasy w spalanym paliwie. Dla kotłów dużej mocy, powyżej 400 t/h pary wodnej – przekroczenie dopuszczalnych limitów zawartości koksiku w lotnym popiele, występuje dopiero przy zawartości biomasy powyżej 10% udziału masowego, a dla kotłów szybowych, powyżej 13% (rys. 2).
Mechanizm powstawania niedopału w żużlu i lotnym popiele
Podawany przez palnik pył węgla i biomasy, ulega procesowi suszenia, odgazowania i spalania produktów termicznego rozkładu-gazu pirolitycznego i karbonizatu w płomieniu pyłowym. Gaz pirolityczny spala się w początkowej fazie płomienia, tworząc tzw. front płomienia. Karbonizat ulega zapłonowi we froncie płomienia i spala się w końcowej części żagwi płomienia. Charakterystyki rozkładu ziarnowego pyłu podawanego do palnika wykazują wyraźną tendencję do wymiarowego rozkładu ziarnowego w przekroju pyłoprzewodu oraz w dyszy palnika pyłowego. W środkowej części dyszy w zdecydowanej przewadze znajdują się ziarenka pyłu o najmniejszych rozmiarach, a na obrzeżu ziarna o największych rozmiarach. Ponieważ szybkość spalania najmniejszych ziaren jest wielokrotnie większa od szybkości wypalania ziaren dużych, stopień wypalenia karbonizatu w jądrze płomienia jest całkowity, a w części peryferyjnej, duże ziarna karbonizatu nie są spalone. Ponieważ peryferyjna część płomienia pyłowego przylega do stref przyściennych komory kotła, gdzie temperatura i zawartość tlenu jest stosunkowo niska, duże ziarna karbonizatu nie mają niekiedy warunków do wypalenia się. Często w niesprzyjających warunkach ulegają wygaszeniu i w postaci karbonizatu opadają do leja żużlowego.
W strefie przyściennej, w której koncentracja tlenu jest bardzo mała, a temperatury są niższe od temperatury zapłonu, duże ziarna karbonizatu nie ulegają zapłonowi, spadają do żużla i tworzą stratę niecałkowitego spalania w żużlu.
Opadanie lotnego koksiku do leja żużlowego kotła jest szczególnie ułatwione z uwagi na panujące w tej przestrzeni podciśnienie w zakresie od 0-100 Pa oraz brak przepływu gazów od leja żużlowego do góry komory kotła. Obecność koksiku w leju żużlowym spowodowana jest więc głównie przez stosunkowo duże i ciężkie ziarna karbonizatu pochodzące ze zmiażdżonej tkanki drzewnej.
Zsypywanie karbonizatu do leja żużlowego charakteryzuje się tym, że strumień ziaren karbonizatu zsypuje się w przestrzeni bezpośrednio przylegającej do konturów ścian ekranowych lub w jego bezpośrednim sąsiedztwie. Gęstość strumienia opadających ziaren karbonizatu w osi leja żużlowego obniża się prawie do zera.
Wyniki badań, pokazujące ilość opadającego karbonizatu w opadającym żużlu przedstawione na rys. 3 wykonane zostały dla kotła OP-410 opalanego pyłem węgla kamiennego i biomasy.
Sposób zmniejszenia straty niecałkowitego spalania koksiku w kotle pyłowym zawierającym komorę spalania zakończoną lejem (zamkniętym szczelnie) z zamknięciem wodnym charakteryzuje się tym, iż w obszar leja żużlowego wprowadza się pod ciśnieniem w zakresie od 0,5 do 5 kPa gaz, którego ciąg ma kierunek od leja żużlowego do komory spalania kotła i który unosi separowane z płomienia opadające do leja zsypowego cząsteczki koksiku w obszar płomienia palnika. Korzystny gaz stanowią spaliny pobierane z recyrkulacji zza wentylatora ciągu.
Rozkład gęstości strumienia opadającego karbonizatu limituje rozkład strumienia gazu nośnego wprowadzonego w poszczególne strefy przekroju poprzecznego leja żużlowego. Konieczność utrzymania sprawności kotła na dotychczasowym poziomie, wymusza wprowadzenie do leja żużlowego spalin pochodzących z recyrkulacji. Utrzymuje się w ten sposób stratę kominową na ustalonym poziomie, przy tej samej liczbie nadmiaru powietrza.
Wynoszenie cząstek lotnego koksiku powstałego w wyniku odgazowania ziaren biomasy jest typowym problemem w kotłach pyłowych. Wynika to z niskiej gęstości pozornej ziaren karbonizatu i wysokiego współczynnika oporu, co objawia się znaczną przewagą siły wyporu nad siłą ciążenia i objawia się łatwością unoszenia cząstek przez przepływające gazy spalinowe. Problem ten jest szczególnie istotny w kotłach z palnikami narożnymi (tangencjanolnymi), gdzie w środku komory tworzy się wir centralny, w którym szybkość przepływu gazów jest znacznie większa niż w pozostałych przekrojach komory. W wyniku różnic w prędkościach przepływu, polu temperatur oraz koncentracji gazów, poprzez wir centralny przepływa bardzo duża ilość lotnego koksiku pochodzącego z biomasy. Wszystkie niespalone większe cząstki biomasy, które znajdą się w strefie oddziaływania wiru centralnego, są porywane przez przepływające z dużą prędkością spaliny i wynoszone z komory kotła.
Sposób obniżenia straty niedopału w lotnym popiele
Bardzo skomplikowana jest sprawa obniżenia niecałkowitego spalania w lotnym popiele. Zawartość części palnych w lotnym popiele bardzo często przekracza 5% udziału masowego i dyskwalifikuje popiół jako materiał do celów budowlanych lub drogownictwa. Zmniejszenie ilości lotnego koksiku można uzyskać metodami „pierwotnymi” przez spalanie go w komorze kotła.
Unoszony przez spaliny lotny koksik charakteryzuje się bardzo dużą reakcyjnością i istnieje możliwość spalenia go w górnej części komory kotła, przed wlotem do przegrzewacza grodziowego. Proces dopalania koksiku musi być jednak stabilizowany i katalizowany przez płomień paliwa ciekłego, najkorzystniej przez paliwo ciekłe zaliczane do OZE. Odpadowym paliwem ciekłym, które może być zaliczane w przyszłości do OZE jest gliceryna techniczna uzyskiwana jako odpad przy produkcji biodizla z olei roślinnych, takich jak olej rzepakowy lub olej talowy oraz z tłuszczu zwierzęcego. Proces spalania gliceryny przy pomocy dwu czynnikowych gazodynamicznych palników z wewnętrznym mieszaniem został przebadany na stanowisku badawczym w kotle OP-650. Uzyskane rezultaty w sposób zadawalający spełniły wymogi odnośnie całkowitego i zupełnego spalania gliceryny przy minimalnej emisji substancji szkodliwych do otoczenia. W spalinach nie stwierdzono sadzy, WWA, ani innych niepożądanych związków. Uzyskano tzw. „biały dym”, który świadczy jedynie o obecności H2O, N2, i CO2 w spalinach.
Umieszczenie palników zasilanych gliceryną w przestrzeni komory kotła nad palnikami pyłowymi, pod przegrzewaczem grodziowym w odległości kilku metrów (rys. 4) daje możliwość dopalenia lotnego koksiku i możliwość wypełnienia warunków świadectwa pochodzenia energii z biomasy. Uzyskane temperatury w jądrze płomienia gliceryny na poziomie 1100-1300°C nie powinny dezorganizować pracy przegrzewacza grodziowego.

Rys. 3. Rozkład opadu karbonizatu w osi wzdłużnej i poprzecznej, przekroju poziomego leja żużlowego
Spalanie ciekłych paliw alternatywnych pochodzących z biomasy
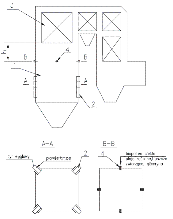
Badanie nad wpływem płomienia spalającej się gliceryny przy pomocy palnika gazodynamicznego z wewnętrznym mieszaniem typu „K” przeprowadzono w kotle spalającym pył węgla kamiennego i pył biomasy pochodzącej z drewna. Schemat kotła z zainstalowanymi czterema palnikami na glicerynę techniczną przedstawiony jest na rys. 4.
Palniki pyłowe tworzą tangencjonalny układ spalania pyłu węglowego w komorze kotła. Badania wpływu płomienia gliceryny na stopień niedopału w lotnym koksiku przeprowadzono dla dwu sposobów zainstalowania palników na glicerynę. Jedna wersja montażowa dotyczyła palników zainstalowanych w narożach kotła, podobnie jak palniki pyłowe, druga wersja dotyczyła palników zainstalowanych w osi ścian na połowie wysokości części komory pomiędzy górnym piętrem palników pyłowych, a dolną krawędzią przegrzewacza grodziowego.
W celu sprawdzenia wpływu katalitycznego działania płomienia paliwa ciekłego na proces dopalania ziaren lotnego koksiku palniki dopalające w wersji czysto doświadczalnej można włączyć w układ palników rozpałkowych kotła. Próby wstępne można przeprowadzić wykorzystując płomień paliwa rozpałkowego kotła. Nakłady inwestycyjne będą wówczas minimalne, a uzyskane rezultaty dadzą odpowiedź o skutkach zastosowanej metody.
Badania przeprowadzono dla 4 obciążeń cieplnych kotła opalanego mieszaniną pyłu węgla kamiennego i pyłu biomasy pochodzącej z drewna, wspólnie mielonych w młynie kulowym o prawie stałym stosunku masy biomasy do masy węgla w przedziale 9-10%.
Zawartość lotnego koksiku w lotnym popiele pobranym z leja zsypowego elektrofiltra przedstawiono na rys. 5. Wykres przedstawia zależności niedopału lotnego koksiku od obciążenia cieplnego kotła. Krzywa 1 obrazuje zawartość ziaren karbonizatu w lotnym popiele bez załączenia palników glicerynowych. Niedopał pochodzi głównie z tkanki drewna. Wyodrębnione ziarna karbonizatu mają podłużną formę z wyraźnie zaznaczonymi włóknami o bardzo rozwiniętej powierzchni zewnętrznej. Badania mikroskopowe wykazały strukturę luźno ułożonych postrzępionych warstewek o ukierunkowanej wzdłużnej orientacji bardzo porowatej o niewielkim pozornym ciężarze właściwym.
Ilość niedopału (Slk) rośnie bardzo szybko od 1,5% przy obciążeniu kotła 130 MW, do wartości 4,5% przy obciążeniu 220 MW. Przy tej konfiguracji i pracy jedynie palników pyłowych minimum technicznej bezpiecznej pracy kotła wynosi około 130 MW, co stanowi około 60% obciążenia cieplnego.
Zawartość niedopału w lotnym popiele przy pracy palnika glicerynowego umieszczonego w narożu kotła przedstawia krzywa 2.
Ilość niedopału (Slk) w lotnym popiele zmniejszyła się dla większych obciążeń cieplnych kotła, prawie dwukrotnie.

Rys. 4. Schemat kotła z palnikami narożnymi 1- komora kotła, 2 - palnik pyłowy, 3 - przegrzewacz grodziowy, 4 - palnik na ciekłe paliwo z biomasy
Zmniejszenie straty niedopału w lotnym popiele dla niskich obciążeń kotła jest niewielkie w granicach 0,5%. Obniżeniu uległo minimum techniczne kotła. Kocioł stabilnie i pewnie pracował przy obciążeniu cieplnym 120 MW, co stanowi około 54% obciążenia znamionowego.
Umieszczenie palnika glicerynowego w osi ściany kotła obniżyło zawartość stałych części palnych w lotnym popiele w sposób zdecydowany (krzywa 3). Ilość karbonizatu w lotnym popiele obniżyła się prawie 4-krotnie w całym zakresie obciążeń cieplnych kotła. Krzywa (3) obrazująca procentową zależność udziału części palnych w lotnym popiele w zależności od obciążenia cieplnego ma prawie płaski charakter. Wartość niedopału zmienia się od 0,25% przy najniższych obciążeniach do 0,62% przy obciążeniach maksymalnych.
Umieszczenia palnika glicerynowego w osi ściany kotła spowodowało bardziej „właściwe” dotarcie płomienia spalającej się gliceryny do przestrzeni komory kotła, gdzie występuje największa koncentracja lotnego koksiku w przepływających spalinach. Tangencjonalne usytuowanie palników pyłowych powoduje bowiem powstanie w środkowej części komory spalania, wirującego wokół osi kotła płomienia, przechodzącego stopniowo w bryłę gazów spalinowych zawierających bardzo dużą ilość lotnego popiołu i koksiku, tworzącą tzw. „komin” poruszający się w kierunku wylotu z komory spalania, co potwierdzają obliczenia numeryczne modelowania matematycznego przy pomocy modelu 3D [1-3].
Przepływ głównej masy gazów spalinowych zawierających prawie 90% ziaren lotnego popiołu i karbonizatu przez środkową strefę górnej części komory spalania daje możliwość katalitycznego dopalania prawie całej ilości lotnego koksiku przy usytuowaniu palnika glicerynowego w osi ściany komory, nawet bez wprowadzenia dodatkowej ilości powietrza koniecznego do dopalenia lotnego karbonizatu.

Rys. 5. Zawartość karbonizatu w lotnym popiele w zależności od mocy kotła (N)
Do wypalenia lotnego karbonizatu wystarczającą ilością tlenu jest istniejący w spalinach tlen, który przeciętnie wynosi około 6-8%. Uzyskane rezultaty potwierdziły to założenie, potwierdziły również fakt, jak ważnym czynnikiem inicjacji spalania karbonizatu jest katalityczne oddziaływanie przypłomiennej strefy płomienia paliw ciekłych, bogatej w rodniki tlenowe i wodorotlenowe katalizujące utlenianie pierwiastka C. W procesie katalitycznego spalania karbonizatu bardzo istotnym problemem jest stopień pokrycia przestrzeni reakcyjnej przez płomień spalającego się paliwa ciekłego [4-5].
Intensywny proces spalania karbonizatu przebiega przede wszystkim w strefie przypłomiennej bogatej w rodniki tlenowe i wodorotlenowe, które katalizują proces utleniania pierwiastka C. Prawidłowość ta wymusza stworzenie takich warunków w komorze kotła, aby możliwie jak największa część przekroju poprzecznego komory była objęta wpływem płomienia paliwa ciekłego, w tym przypadku płomienia glicerynowego, a szczególnie ta strefa, w której występuje największa koncentracja lotnego koksiku [6-7].
Z uwagi na fakt, że koncentracja lotnego koksiku jest największa w środkowej strefie komory, w strefie tzw. „komina”, w którym występuje największa szybkość unoszenia - najwyższy ciąg - w kierunku wylotu z komory, płomień palnika glicerynowego powinien wnikać w tę strefę komory paleniskowej.
Ponieważ długość płomienia jest zależna od wydajności palnika, co obrazuje rys. 6, 7 i 8, zostały przeprowadzone oznaczenia zawartości karbonizatu w lotnym popiele w zależności od wydajności palnika umieszczonego w osi ściany przy różnych obciążeniach cieplnych kotła. Zawartość koksiku w lotnym popiele w zależności od obciążenia cieplnego kotła i wydajności palnika przedstawiona została na rys. 9.
Dla niskich obciążeń kotła bliskich minimum technicznego wydajność palnika glicerynowego ma niewielki wpływ na zawartość koksiku w lotnym popiele. Fakt ten związany jest z „globalnie” niską ilością spalanej biomasy oraz z warunkami aerodynamicznymi spalin w komorze kotła. Powstałe spaliny przepływają przez komorę spalania z niskimi prędkościami, które umożliwiają wypalenie się pozostałego karbonizatu. Przy niskich obciążeniach cieplnych kotła wielkość płomienia glicerynowego ma niewielki wpływ na wielkość niedopału w lotnym koksiku. Dla obciążeń cieplnych powyżej 75%, wydajność palnika glicerynowego na wielkość niedopału w lotnym koksiku jest już znacząca, szczególnie dla wydajności palnika poniżej 1000 kg/h. Obniżenie wydajności palnika poniżej tej wartości powoduje znaczny wzrost zawartości karbonizatu w lotnym popiele. Wzrost wydajności palnika glicerynowego powyżej 1200 kg/h praktycznie nie ma już znaczącego wpływu na stratę niedopału w lotnym koksiku. Zawartość karbonizatu w lotnym popiele jest praktycznie stała i wynosi około 0,2%.
Zabudowa palników na paliwo ciekłe w komorze spalania nad palnikami pyłowymi w strefie pod przegrzewaczem grodziowym wielokrotnie zmniejsza zawartość koksiku w lotnym popiele.
Rys. 6. Rozkład temperatury wzdłuż osi płomienia w zależności od wydajności palnika
Rys. 9. Zawartość karbonizatu (Sik)
w lotnym popiele w zależności od wydajności palnika (Bg) i mocy kotła (Nk)
Rys. 7. Płomień palnika o wydajności około 1000 kg/h gliceryny
Rys. 8. Płomień palnika o wydajności około 400 kg/h gliceryny
Wnioski
- Ilość spalonej biomasy jest uwarunkowana mocą kotła energetycznego. W kotłach OP-210÷OP-230 nie należy więcej spalać biomasy jak 6%, w kotłach OP-380÷OP-430 nie więcej jak 9%, w kotłach OP-650 o normalnej komorze nie więcej jak 10%, w kotłach OP-650 z powiększoną komorą nie więcej jak 12%, a w kotłach szybowych OB-1150 nie więcej jak 13% udziału masowego.
- Zmniejszenie straty niecałkowitego spalania w lotnym koksiku jest bardzo skuteczne, wielokrotnie zmniejszające stratę niecałkowitego spalania poprzez wprowadzenie palnika na paliwo ciekłe w strefę komory kotła pomiędzy palnikami pyłowymi i przegrzewaczem grodziowym.
- Dla narożnych palników pyłowych stopień wypalenia lotnego koksiku jest najwyższy przy osiowym umieszczeniu palnika olejowego w osi ściany komory kotła.
Literatura
- Karcz H., Głąbik R., Kantorek M., Modliński Zb., Raczka P.; „Efekty ekonomiczne spalania biomasy w przedpalenisku kotła energetycznego”, Energetyka 2010 nr 2 (luty), s. 115-127.
- Głąbik R., Rzepa K., Modliński Zb., Sikorski Wł., Kosiorek-Herbuś A., Karcz H.; „Obliczenia cieplne kotła OP-150 dla różnych udziałów energetycznych biomasy w paliwie”, Prace Naukowe ImiUE Pol. Śląskiej 10th International Conference on Boiler Technology Seria Monografie Konferencje 2006 z 16, t.1.
- Karcz H., Modliński Zb., Głąbik R., Kosiorek-Herbuś., Kurzelewski J.; „Wpływ spalania biomasy w przedpalenisku na aerodynamikę kotła energetycznego”, Konferencja Naukowo-Techniczna pt. „Nowoczesne technologie spalania węgla i paliw odpadowych”, s. 107-120. Szczyrk 15-17 listopada 2006.
- Karcz H., Butmankiewicz T., Machnikowski J., Andryjowicz Cz.: „Sposób i instalacja wykorzystania produktów niecałkowitego spalania”. Patent do zgłoszenia P361112 z dnia 07.07.2003 r.
- Karcz H., Butmankiewicz T.: „Sposób zmniejszania straty niecałkowitego spalania koksiku w energetycznym kotle pyłowym oraz energetyczny kocioł pyłowy do realizacji tego sposobu”. Zgłoszenie Patentowe P388591 z dnia 21.07.2009 r.
- Karcz H., Chzmaljan D.: Kinetika zagrenija ugólnych zioren sodieržajuščich letuše veščestvae. Archiwum Termodynamiki i Spalania 1979, Vol 10, Nr 1 s. 85-103.
- Standa J., Karcz H.: Neue Aspekte der diffuskinetoischen. Verbennungs teorie von festen Bernnstoffen im Lichte der Untersuchungen der inneer Struktur von verbrannten Kohlenkőrnern VDJ-Gesellschaff Energietechnik. Verbernnung Und Feuerungen 16 Deustscher Flammentag Tagung. Clausthal. 14 um 15 September 1993 VDJ verlang s. 227-342.
- Źródło:
- Nowa Energia
- Dodał:
- Wydawnictwo i Wortal "Nowa Energia" - Nowa Energia - D. Kubek i M. Marchwiak sc
Czytaj także
-
Ochrona atmosfery w energetyce i przemyśle
Rozwój cywilizacji jest niemożliwy bez energii elektrycznej i dlatego z roku na rok świat wytwarza coraz więcej energii, zwiększając...
-
Kluczowa rola wycinarek laserowych w obróbce metali
www.automatyka.plWycinarki laserowe zrewolucjonizowały przemysł obróbki metali, oferując niezwykłą precyzję i efektywność. Dowiedz się, dlaczego są one...
-
-
-